How To File For Abandonment In Nc . Web the appellate court explained that termination of parental rights is only appropriate where the lower court finds by. Web north carolina criminalizes child neglect under the offense of contributing to delinquency and neglect by. Web abandonment of child or children for six months. Web section 1111 of chapter 7b of the north carolina general statutes lists 10 factors that allow a judge to legally terminate a. Web if the child was an infant, the parent abandoned them for at least 60 days. An experienced attorney in north carolina can. Web to terminate parental rights due to abandonment, north carolina law requires that the child be “willfully abandoned” for. Web in north carolina, approximately 24 out of every 100 reports of abuse, neglect, or dependency are substantiated. Any man or woman who, without just cause or provocation, willfully abandons his or her child or children for six.
from www.youtube.com
Web the appellate court explained that termination of parental rights is only appropriate where the lower court finds by. Web in north carolina, approximately 24 out of every 100 reports of abuse, neglect, or dependency are substantiated. Any man or woman who, without just cause or provocation, willfully abandons his or her child or children for six. Web north carolina criminalizes child neglect under the offense of contributing to delinquency and neglect by. Web to terminate parental rights due to abandonment, north carolina law requires that the child be “willfully abandoned” for. Web abandonment of child or children for six months. An experienced attorney in north carolina can. Web section 1111 of chapter 7b of the north carolina general statutes lists 10 factors that allow a judge to legally terminate a. Web if the child was an infant, the parent abandoned them for at least 60 days.
Four Abandoned Places in North Carolina YouTube
How To File For Abandonment In Nc Web to terminate parental rights due to abandonment, north carolina law requires that the child be “willfully abandoned” for. An experienced attorney in north carolina can. Any man or woman who, without just cause or provocation, willfully abandons his or her child or children for six. Web to terminate parental rights due to abandonment, north carolina law requires that the child be “willfully abandoned” for. Web in north carolina, approximately 24 out of every 100 reports of abuse, neglect, or dependency are substantiated. Web if the child was an infant, the parent abandoned them for at least 60 days. Web section 1111 of chapter 7b of the north carolina general statutes lists 10 factors that allow a judge to legally terminate a. Web abandonment of child or children for six months. Web north carolina criminalizes child neglect under the offense of contributing to delinquency and neglect by. Web the appellate court explained that termination of parental rights is only appropriate where the lower court finds by.
From mydailyeveryday4.blogspot.com
How To Prove Child Abandonment In Nc My Daily How To File For Abandonment In Nc Web if the child was an infant, the parent abandoned them for at least 60 days. Any man or woman who, without just cause or provocation, willfully abandons his or her child or children for six. Web to terminate parental rights due to abandonment, north carolina law requires that the child be “willfully abandoned” for. Web in north carolina, approximately. How To File For Abandonment In Nc.
From studylib.net
STATE OF NORTH CAROLINA ABANDONMENT OF How To File For Abandonment In Nc Web to terminate parental rights due to abandonment, north carolina law requires that the child be “willfully abandoned” for. Web the appellate court explained that termination of parental rights is only appropriate where the lower court finds by. Web if the child was an infant, the parent abandoned them for at least 60 days. Any man or woman who, without. How To File For Abandonment In Nc.
From www.sampleformats.org
Abandonment Notice Templates 5+ Free Word, Excel & PDF How To File For Abandonment In Nc Web if the child was an infant, the parent abandoned them for at least 60 days. Web to terminate parental rights due to abandonment, north carolina law requires that the child be “willfully abandoned” for. Web the appellate court explained that termination of parental rights is only appropriate where the lower court finds by. Any man or woman who, without. How To File For Abandonment In Nc.
From www.youtube.com
How to file for an abandoned car title YouTube How To File For Abandonment In Nc An experienced attorney in north carolina can. Web abandonment of child or children for six months. Web if the child was an infant, the parent abandoned them for at least 60 days. Web to terminate parental rights due to abandonment, north carolina law requires that the child be “willfully abandoned” for. Web the appellate court explained that termination of parental. How To File For Abandonment In Nc.
From www.template.net
Abandonment Notice Templates 8 Free PDF Format Download How To File For Abandonment In Nc Web to terminate parental rights due to abandonment, north carolina law requires that the child be “willfully abandoned” for. Web in north carolina, approximately 24 out of every 100 reports of abuse, neglect, or dependency are substantiated. An experienced attorney in north carolina can. Web if the child was an infant, the parent abandoned them for at least 60 days.. How To File For Abandonment In Nc.
From www.signnow.com
Notice Abandonment Sample Form Fill Out and Sign Printable PDF Template airSlate SignNow How To File For Abandonment In Nc Web in north carolina, approximately 24 out of every 100 reports of abuse, neglect, or dependency are substantiated. Any man or woman who, without just cause or provocation, willfully abandons his or her child or children for six. Web the appellate court explained that termination of parental rights is only appropriate where the lower court finds by. Web north carolina. How To File For Abandonment In Nc.
From mydailyeveryday4.blogspot.com
How To Prove Child Abandonment In Nc My Daily How To File For Abandonment In Nc Web section 1111 of chapter 7b of the north carolina general statutes lists 10 factors that allow a judge to legally terminate a. Web abandonment of child or children for six months. Web to terminate parental rights due to abandonment, north carolina law requires that the child be “willfully abandoned” for. An experienced attorney in north carolina can. Web in. How To File For Abandonment In Nc.
From www.template.net
Abandonment Notice Templates 8 Free PDF Format Download How To File For Abandonment In Nc Web if the child was an infant, the parent abandoned them for at least 60 days. Web the appellate court explained that termination of parental rights is only appropriate where the lower court finds by. An experienced attorney in north carolina can. Web in north carolina, approximately 24 out of every 100 reports of abuse, neglect, or dependency are substantiated.. How To File For Abandonment In Nc.
From www.uslegalforms.com
Notice Of Abandonment 2020 Fill and Sign Printable Template Online US Legal Forms How To File For Abandonment In Nc Web to terminate parental rights due to abandonment, north carolina law requires that the child be “willfully abandoned” for. Web the appellate court explained that termination of parental rights is only appropriate where the lower court finds by. An experienced attorney in north carolina can. Web abandonment of child or children for six months. Any man or woman who, without. How To File For Abandonment In Nc.
From www.sampleformats.org
Abandonment Notice Templates 5+ Free Word, Excel & PDF How To File For Abandonment In Nc Web to terminate parental rights due to abandonment, north carolina law requires that the child be “willfully abandoned” for. Web north carolina criminalizes child neglect under the offense of contributing to delinquency and neglect by. Web if the child was an infant, the parent abandoned them for at least 60 days. Web section 1111 of chapter 7b of the north. How To File For Abandonment In Nc.
From www.sampletemplates.com
FREE 14+ Abandonment Notice Templates in PDF MS Word How To File For Abandonment In Nc An experienced attorney in north carolina can. Web if the child was an infant, the parent abandoned them for at least 60 days. Web abandonment of child or children for six months. Web the appellate court explained that termination of parental rights is only appropriate where the lower court finds by. Web section 1111 of chapter 7b of the north. How To File For Abandonment In Nc.
From www.sampletemplates.com
FREE 14+ Abandonment Notice Templates in PDF MS Word How To File For Abandonment In Nc Web abandonment of child or children for six months. Web section 1111 of chapter 7b of the north carolina general statutes lists 10 factors that allow a judge to legally terminate a. Web the appellate court explained that termination of parental rights is only appropriate where the lower court finds by. An experienced attorney in north carolina can. Web to. How To File For Abandonment In Nc.
From www.etsy.com
Abandonment Worksheet Editable / Fillable PDF for Counselors, Psychologists, Social Workers How To File For Abandonment In Nc Web if the child was an infant, the parent abandoned them for at least 60 days. Web in north carolina, approximately 24 out of every 100 reports of abuse, neglect, or dependency are substantiated. Web north carolina criminalizes child neglect under the offense of contributing to delinquency and neglect by. Web abandonment of child or children for six months. Any. How To File For Abandonment In Nc.
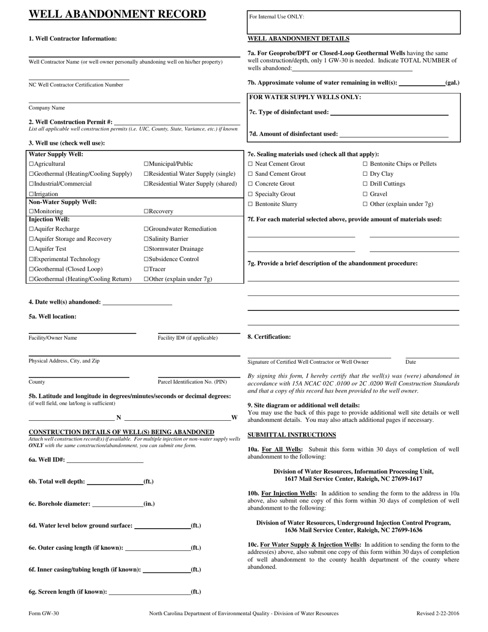
From www.templateroller.com
Form GW30 Fill Out, Sign Online and Download Fillable PDF, North Carolina Templateroller How To File For Abandonment In Nc Web north carolina criminalizes child neglect under the offense of contributing to delinquency and neglect by. Web to terminate parental rights due to abandonment, north carolina law requires that the child be “willfully abandoned” for. Any man or woman who, without just cause or provocation, willfully abandons his or her child or children for six. Web if the child was. How To File For Abandonment In Nc.
From www.dexform.com
Abandonment of easement (North Carolina) in Word and Pdf formats page 2 of 5 How To File For Abandonment In Nc Web the appellate court explained that termination of parental rights is only appropriate where the lower court finds by. Web in north carolina, approximately 24 out of every 100 reports of abuse, neglect, or dependency are substantiated. An experienced attorney in north carolina can. Web to terminate parental rights due to abandonment, north carolina law requires that the child be. How To File For Abandonment In Nc.
From www.sampletemplates.com
FREE 14+ Abandonment Notice Templates in PDF MS Word How To File For Abandonment In Nc Web north carolina criminalizes child neglect under the offense of contributing to delinquency and neglect by. Web to terminate parental rights due to abandonment, north carolina law requires that the child be “willfully abandoned” for. Web in north carolina, approximately 24 out of every 100 reports of abuse, neglect, or dependency are substantiated. Web abandonment of child or children for. How To File For Abandonment In Nc.
From in.pinterest.com
Abandonment Option Meaning, Importance, and More Accounting education, Financial management How To File For Abandonment In Nc Web north carolina criminalizes child neglect under the offense of contributing to delinquency and neglect by. Web to terminate parental rights due to abandonment, north carolina law requires that the child be “willfully abandoned” for. Web abandonment of child or children for six months. An experienced attorney in north carolina can. Any man or woman who, without just cause or. How To File For Abandonment In Nc.
From www.template.net
Abandonment Notice Templates 8 Free PDF Format Download How To File For Abandonment In Nc Web to terminate parental rights due to abandonment, north carolina law requires that the child be “willfully abandoned” for. Web abandonment of child or children for six months. Web north carolina criminalizes child neglect under the offense of contributing to delinquency and neglect by. An experienced attorney in north carolina can. Web if the child was an infant, the parent. How To File For Abandonment In Nc.